Аренда мачтовых подъемников

ЛУЧШИЕ УСЛОВИЯ ПРИ ДОЛГОСРОЧНОМ СОТРУДНИЧЕСТВЕ!

Выгодная аренда грузовых мачтовых подъемников

Строительная компания предлагает в Минске взять в аренду подъемник мачтового типа с грузоподъемностью от 1500 до 3000 кг, на выгодных для заказчиков условиях, так как цена аренды, является самой доступной в стране.

В наличии грузопассажирские, грузовые подъемники, платформы для монтажа, фасада и грузов. Своим клиентам компания доставляет спецтехнику прямо на строительный объект. 

На протяжении длительного периода времени наше предприятие оказывает услуги по аренде в самой столице и других регионах республики. Благодаря слаженной работе коллектива удаётся занимать лидирующие позиции среди организаций, оказывающих подобного рода услуги.

Аренда грузовых мачтовых подъемников

При нерегулярном выполнении высотных работ или подъема груза наиболее оптимальным вариантом будет краткосрочная аренда мачтового подъемника. Это избавит вас от необходимости самостоятельной покупки профессионального оборудования, применение которого будет нерегулярным. В результате вы существенно сэкономите свой бюджет и при этом обеспечите кратчайшие сроки выполнения работ.

Устройство и применение

Мачтовый подъемник – это грузоподъемный вид спецтехники, основная задача которого заключается в подъёме грузов или людей на высоту. Использование такой машины позволяет подавать строительные материалы, выполнять отделку на высоте, а также производить монтажные работы фасадов любых конструкций и сооружений. 

Мачтовый подъемник

Конструктивно мачтовые подъемники состоят из платформы, рамы, двигателей с редуктором, пульта управления и секционной мачты (прямоугольной или треугольной). Металлические секции, скрепляются между собой болтами М20, затем специальным креплением и анкерами крепятся к стене или к перекрытию здания. По мачте, служащей направляющей, при помощи зубчато-реечной системы подъема вертикально движется передвижная площадка.

Наиболее известные производители секционных подъемников: Scanclimber, Alimak Hek, Saeclimber, Encomat, Malmqvist, Safi, Geda. 

Области применения

Фасадные работы:

используется при отделке фасада, монтаже окон, реставрационные работы...

Ремонт и отделка зданий:

применяют для подъема на высоту отделочных материалов, замены кровли

Строительство мостов:

эксплуатируют при возведении и реконструкции путепроводов.

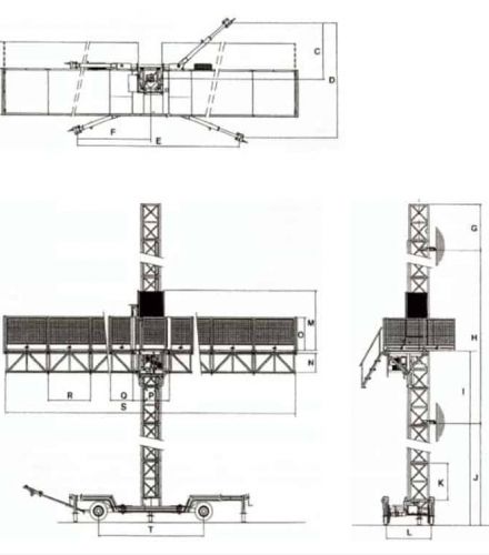
Чертежи мачтового строительного подъемника

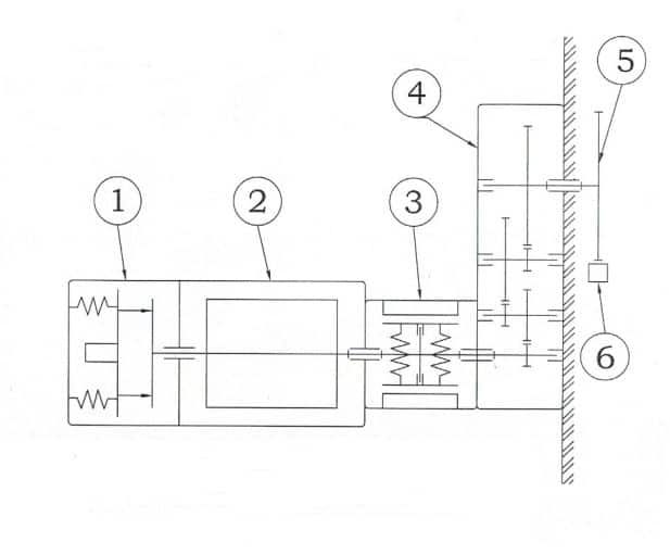
Кинематическая схема подъемной рабочей платформы

Кинематическая схема строительного мачтового подъемника
  1. Тормоз.
  2. Электромотор.
  3. Центробежный тормаз.
  4. Редуктор.
  5. Шестерня.
  6. Рейка.

Общий вид

Единицы измерения (м)
Чертежи мачтового строительного подъемника
  • A Макс. 2,5; B 1,5; C 0,98 - 1,93;
  • D 1,6 - 4,59; E 4,52 - 6,54;
  • F 2,26 - 3,27; G Макс. 8; H 13 - 15;
  • I Мин. 1,4 / 1,85;  J 3 - 15; K 1,51;
  • L 1,54;  M 2,5;  N 0,65;  O 1,1; 
  • P 1,2; Q 0,8; 
  • R 1,5; S 2,9 -10,3; T 3,72.

Надежные и безопасные

Изготовителем подъемных мачтовых платформ является всемирно известный производитель грузоподъемных механизмов – Alimak Hek. В нашем ассортименте такие модели как: MSHF, PLM, MSM, MS 3000 Super, на шасси и наземной раме, пассажирские и фасадные грузоподъемники.

Все виды строительных подъемников оснащены многоуровневой системой безопасности:

  • концевыми выключателями от перекоса, индуктивными датчиками для остановки в конце мачты;
  • аварийным ловителем (центробежным);
  • реле контроля фаз;
  • защитой от перегруза;
  • автоматическим тормозом.
Безопасная аренда строительного подъемника

Мачтовый грузопассажирский подъемник Hek позволяет вам выполнять вертикальную транспортировку или отделу с меньшими рисками и большей эффективностью, чем при использовании подъемной машины от ПМГ, строительных люлек либо лесов, при этом он универсален, легко перевозится и собирается прямо с площадки.

Подъемные платформы для грузов обладают международным сертификатом соответствия

Сертификат мачтового подъемника
Сертификат соответствия мачтового подъемника

Сертификация по стандарту системы менеджмента качества BS EN ISO 9001: 2008 была достигнута в апреле 2011 года.

Грузоподъемные машины проходят техническую диагностику (раз в 2 года), а после монтажа на объекте – ПТО, после чего делается соответствующая отметка в паспорте ГПМ.


Почему аренда мачтового подъемника лучше покупки

Приобретение и содержание техники очень затратно, часто целесообразнее взять на время, таким образом вы увеличите производительность труда на 30%, а также получите ряд преимуществ.

Не нужно покупать

в этом случае спецтехника обходится гораздо дешевле, чем её покупка;

Цена

отличная система лояльности и индивидуальный подход;

Аренда мачтового подъемника

Техническое обслуживание

компания предоставляет услуги по тех. осмотру и ремонту;

Эффективность

объект строится рационально и с меньшими затратами.

Важным плюсом, также является тот факт, что для управления не нужен машинист


Преимущества аренды мачтового секционного подъемника

  1. Возможность перемещать персонал и груз до определенной высоты на подъемной платформе.

  2. Мачтовые подъемники более устойчивые чем строительные леса и люльки - не раскачиваются.

  3. При использовании рабочей платформы сокращается итоговая смета.

  4. Разгружать и загружать материалы можно прямо с борта автомобиля.

Что мы предлагаем

Строительный подъемник зубчато-реечный MSHF

  • Передвижной строительный подъемник
  • Зубчато реечный мачтовый подъемник
  • Подъемна платформа с двумя мачтами

    ПОЛНОЕ ОПИСАНИЕ

      Показатели Ед. изм
     
    Длина (м) /
    максимальная грузоподъемность (кг)

    2,9 / 2300

    4,3 / 2200

    5,9 / 2000

    7,3 / 1800

    8,9 / 1600

    10,3 / 1500

     
    Ширина рабочей платформы (м)

    1,5 — 2,5

     
    Длина площадки (м)

    2,9 — 10,3

     
    Высота подъема без крепежа (м)

    20

     
    С применением монтажа к зданию (м)

    150

     
    Секция мачты (м / кг)

    1,25 / 80

    1,5 / 103

     
    Расстояние между анкерами,
    используемыми в качестве крепёжных элементов (м)

    13—15

     
    Скорость подъема и спуска (м / мин)

    7

     
    Электросистема — двигатели (кВт / Гц / В)

    2х2,1 /50 /360 - 400, 3 фазы/30 А

     
    Транспортный вес (м / кг)

    Элемент стола 0,8 (0,8х1,5х0,8) — 90

    Часть площадки 1,5 (1,5х1,5х0,8) — 140

    Шасси (4,52 х1,77 м) — 1750, Узел привода — 950

    Двухмачтовый грузовой подъемник MS 3000 SUPER

    • Передвижной двухмачтовый подъемник
    • Платформа двухмачтового подъемника
    • Двухмачтовый грузовой фасадный подъемник

      ХАРАКТЕРИСТИКИ

        Характеристики Ед. изм
       
      Длина (м) / грузоподъемность (кг)

      8,5 / 3000

      12 / 3000

      15 / 3000

       
      Ширина стола (м)

      1,5 — 2,5

       
      Минимальная и максимальная длина (м)

      8,5 — 15

       
      Рабочая высота без крепления (м)

      8

       
      С применением монтажа к зданию (м)

      100

       
      Горячеоцинкованная секция мачты (м / кг)

      1,5 / 86

       
      Расстояние между пристежками (м)

      6

       
      Электросистема — моторы (кВт / Гц / В)

      2х3 /50 /360 - 400, 3 фазы/32 А

       
      Размер и масса (м / кг)

      Элемент платформы 1,5 — 198

      Часть площадки 1,75 — 205

      Шасси в базе (8,52х2,35х1,92) — 4415


      Подъемник строительный мачтовый MSM

      • Мачтовая строительная платформа
      • Мачтовый подъемник на наземной раме
      • Строительный фасадный двухмачтовый подъемник

        КЛИКНИТЕ ДЛЯ ОБЗОРА

          Показатели Ед. изм
         
        Длина (м) / грузоподъемность (кг)

        2,7 / 2300

        4,1 / 2200

        5,7 / 2000

        7,1 / 1800

        8,7 / 1600

         
        Метраж двухмачтового оборудования на наземной раме

        8,1 — 23,1

         
        Ширина площадки (м)

        1,5 — 2,5

         
        Длина в одномачтовом исполнении (м)

        2,7 — 8,7

         
        Высота подъема без крепежа (м)

        10

         
        С применением монтажа к зданию (м)

        100

         
        Горячеоцинкованные мачтовые секции (м / кг)

        1,5 / 78

         
        Расстояние между анкерами,
        используемыми в качестве крепёжных элементов (м)

        6 — 8

         
        Скорость подъема и спуска (м / мин)

        7

         
        Электросистема — двигатели (кВт / Гц / В)

        2х2,1 /50 /360 - 400, 3 фазы/30 А

         
        Транспортный вес (м / кг)

        Элемент платформы 0,8 (0,8х1,5х0,8) — 90

        Часть площадки 1,5 (1,5х1,5х0,8) — 140

        Шасси (3,48 х1,48) — 773, Узел привода — 865


        Монтаж мачтового подъемника

        Сборка и установка ГПМ ответственная задача, поэтому монтировать должны специалисты имеющие допуск к высотным и электромонтажным работам. Сборочные работы включают в себя следующие этапы:

        • подготавливается специальная площадка;
        • закрепляется секция мачты к стене или перекрытию;
        • монтируется выдвижная платформа;
        • налаживается и проверяется всё устройство (концевые выключатели, автоматический тормоз, индукционные датчики и др.);

        Важно! Грунт для площадки должен выдерживать давление 2 кг / кв.см. — минимальные требования.

        Стоимость монтажа мачтового подъемника зависит от его высоты. К примеру цена за установку подъемника с рабочей платформой на высоту 30 метров составит 1000 рублей, а 50 м, уже 1700 руб.

        Предоставляем по предварительной договоренности услугу "Шефмонтаж" — наш специалист консультирует и проверяет правильность сборки.

        Видео установки подъемной строительной платформы


        Как взять мачтовый грузовой подъемник в аренду

        1. Чтобы получить напрокат электроподъемник, достаточно связаться с дежурным по телефону, указанному на сайте компании.
        2. Далее требуется оставить заявку, указав место и сроки использования.
        3. После оплаты всей суммы по договору, подъемное оборудование доставляется на объект клиента.
        Аренда мачтового грузового подъемника

        Условия и стоимость аренды мачтовых подъемников

        • необходимо перечислить предоплату за монтаж и месяц пользования оборудованием;
        • предоставить реквизиты организации и учредительные документы;
        • минимально возможный период временного владения 1 месяц.
        Вид услугиЦена
        Одномачтовая подъемная машина

        от 2500 руб. / месяц

        Двухмачтовый

        от 2700 рублей / мес.

        Грузопассажирский (лифт)

        от 3800 BYN / месяц

        Установка секций за 1 м. высоты

        35 р.

        Демонтаж подъемной платформы — за метр

        35 руб.

        Доставка на место объекта и увоз (Расстояние от МКАД не более 15 км.)

        1000 800 BYN

        Завоз на место за пределами столицы и вывоз (Расстояние от МКАД больше 15 километров)

        1000 800 р. + 2 за км.

        Рассчитайте ориентировочную цену аренды мачтового подъемника в месяц

        Введите высоту до 30 метров
        Выберите тип
        руб.
        Напишите высоту от 30 до 150 м
        Выбор грузоподъемника
        р.

        С нами вы всегда будете на высоте

        Мы строго в срок предоставим необходимый подъемник на место для выполнения работ.
        Вся специальная техника от нашей компании всегда находится в отличном техническом и санитарном состоянии. Благодаря правильной ценовой политике руководителя, цены за аренду мачтовых подъемников являются самыми выгодными в стране.

        Вы лично можете оценить профессионализм наших сотрудников и воспользоваться качественной техникой по удивительно привлекательной стоимости. Смело обращайтесь за консультацией к ведущему специалисту по телефону. Наша услуга — аренда мачтового подъемника, доступна в Минске и Минской области.

        Аренда грузового мачтового подъемника
        Аренда мачтового подъемника
        Аренда строительного мачтового подъемника

        Напишите, что Вам необходимо и мы подготовим лучшее коммерческое предложение

        График работы

        • Понедельник - Воскресенье

          8:00 - 21:00

        +375 (29) 607-15-73

        info@pod-emnik.by

        УНП 191175929

        г. Минск, проспект газеты "Звязда" 35

        Кнопка вверх
        Call Now Button